
Hud 223 F Loan Lsg Lending Advisors


How To Fill Out The Calgreen Checklist Calgreen Energy Services
Https Www Wvhdf Com Wp Content Uploads 2020 01 Cpd Green Bldg Retrofit Checklist Exhibit C Pdf

The Hud Epc Review Process 1 Process Overviewcompleteness
Https Www Hud Gov Sites Documents Doc 12367 Pdf

How To Fill Out The Calgreen Checklist Calgreen Energy Services

Program Wide Requirements Checklist Hud

The Hud Epc Review Process 1 Process Overviewcompleteness

The Hud Epc Review Process 1 Process Overviewcompleteness

How To Fill Out The Calgreen Checklist Calgreen Energy Services

Federal Fair Housing Poster Equal Opportunity Hud

Green Building Standards Restore Louisiana Task Force

Green Building Overview And Issues Everycrsreport Com
The Hud Epc Review Process 1 Process Overviewcompleteness

Components Of Green Building Sustainable Building Design

Hud 221 D 4 Loan Lsg Lending Advisors

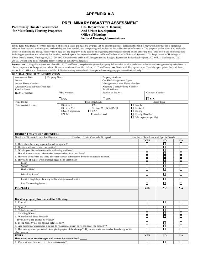
Hud Preliminary Damage Assessment Appendix A 3

Komentar
Posting Komentar